产品介绍:
SDGreen-12系列环网开关柜是SF6气体绝缘的金属共箱式封闭开关设备,该设备可由负荷开关单元、负荷开关熔断器组合电器单元、真空断路器单元、母线进线单元的模块组成。采用一系列先进技术和材料,具有优异的电气性能和机械性能,受环境和气侯影响小,体积小巧,易于安装,操作方便,无需维护,且具有灵活的组合方式。清晰直观的设计保证操作简单、直接。馈线接线容量大,适合多种接线系统。
单元定义:
产品特点:
操作安全
通过以下安全措施,我们可为用户提供特别的安全保障:
◆ 一体化三工位负荷开关
◆ 断路器采用负荷开关替代隔离开关,更安全可靠
◆ 一次侧全密闭设计提供意外接触的保护
◆ 满足五防要求的机械联锁
◆ 带电显示器可提供进出线路带电指示
运行可靠
全密闭设计,所有10kV开关及母线带电体均密封在3mm不锈钢板焊接成的气箱中;配硅橡胶电缆插头,实现电缆头全绝缘全密封,从而不受灰尘、潮湿、小动物等外界环境影响
◆ 弹簧储能操作机构,可人工或电动操作
◆ 面板模拟线图提供开关位置指示
◆ 柜体用镀锌板制作,表面静电喷涂,增强抗腐蚀性能
◆ 压力表监视箱体内SF6气体安全压力范围
经济性
◆ 免维护
◆ 高度可靠
◆ 使用寿命可达20年
方案灵活
◆ 多种进线方式,可实现左、右、上或前进线
◆ 多种组合方式,各单元之间可实现任意组合
◆ 采用绝缘母线,可实现前后并柜或左右并柜
◆ 设计方案灵活
应用广泛
◆ 馈出线容量大、占地小,适合多种应用需求
设计说明:
SDGreen-12系列环网开关柜安装在一个镀锌板框架上,开关单元在SF6气箱内,气箱由抗腐蚀和无磁性3mm厚不锈钢板制成。SF6气箱是一个“密封压力系统”,在正常工作环境下可运行20年。SF6气体正常工作时压力为0.15~0.4bar。气箱装有压力释放装置,当压力过高时,保证气体能从底部或后部释放。
开关单元
负荷开关采用同轴旋转双断点方式,通过同一操作孔与滑板配合进行功能操作,因此开关在任一时刻只能处于“合闸、分闸、接地”三种状态的其中之一,彻底避免误操作。
操作机构
开关的操作机构安装在气箱外的前部,经特殊工艺处理,防锈蚀,方便手动操作及维护,并很容易实现电动操作。
真正满足需求的电缆室
电缆连接室空间大,套管为标准式设计,实现与所有欧式标准电缆插头的配合。正常情况下每个负荷开关单元可接1~3回出线,特殊设计型可接4~6回出线。真空断路器单元可接1~2回出线。
压力释放装置
压力释放装置与电缆室之间用金属板隔开,如气箱内压力过高时,装置内防爆膜片破裂,以释放压力。
电缆连接
选用国际标准通用规格套管(符合DIN47636标准或美国标准),便于用户选择相应的电缆附件。采用T形前、后电缆插头连接,欧式螺栓逐级紧固式结构,前插头与套管的连接采用M16螺栓。
避雷器连接
负荷开关单元可加装T形后插式硅橡胶全密封金属氧化锌避雷器。当电缆回路数较多,空间不够时可采用π形后插式避雷器。
设计说明:
联锁机构
开关内部的联锁机构能有效防止误操作,并确保电缆室只有在开关处于“接地”状态,才能进入,并可加明锁,锁定在不同状态。
辅助开关
负荷开关、接地开关可根据需要配置能同步反映开关位置状态的辅助开关。
熔断器
SDGreen-12系列开关熔断器更换直接、简便。熔断器置于绝缘管内,绝缘管位于SF6的金属气箱内,这种设计有如下优点:
◆ 熔断器盖及密封装置在电场最弱部分
◆ 无导电物质能附在熔断器组件上
◆ 在SF6气体中的部分完全受保护
◆ 熔断器盖无需额外的绝缘弹簧储能操作机构和联动跳闸装置保证负荷开关三相在任一相熔断器熔断时同时自动断开。
开关测试
SDGreen-12系列开关通过国家电力工业部电气设备质量检验测试中心检测,产品符合以下主要标准:GB/T11022、IEC 60694、IEC 60265、IEC 60420、IEC 60056、IEC60298、IEC 60129。
使用条件
SDGreen-12系列开关柜适合在- 40℃ ~ +50℃的温度范围内使用。10kV带电体位于SF6密闭气箱内,硅橡胶插头实现电缆与开关的连接,形成全绝缘、全密封结构,整个系统不受环境因素的影响,如潮气、灰尘、腐蚀性气体等,SF6气箱由不锈钢材料制成,保证开关免维护,使用寿命长。
表面保护
环网柜框架采用镀锌板,表面静电喷涂,以防腐蚀。柜体正面操作面板有静电喷涂层。
标准涂层:
◆ 操作屏RAL7035(白色)
◆ 电缆室门RAL7035(白色)
◆ 开关侧板RAL7035(白色)
负荷开关单元 C
该开关可分为单体、单体双套管出线、二单元、三单元、四单元、五单元标准型和带有侧进线套管型,采用共用一个SF6气箱的结构,在各单元之间不需要母线外部连接,因此,结构相对简化,便于安装,更为安全;虽然采用了气箱一体结构,每个单元仍有独立间隔。六单元以上采用绝缘母线并柜实现,可前后或左右并柜,柜型是标准型上侧带母线套管。
标准配置
◆ 630A母线
◆ 三工位负荷/接地开关
◆ 弹簧操作机构
◆ 负荷开关和接地开关位置指示
◆ 位于前部水平布置的出线套管
◆ 进线/母线电压指示器(单体或母线扩展型)
◆ 出线电压指示器
◆ 所有的开关功能都可在面板上加装挂锁方式实现控制
◆ 接地开关与电缆室门的联锁
◆ SF6气压表
◆ 接地铜排
◆ 防爆泄压阀
可选配置
◆ 短路、接地故障指示器
◆ 测量用环形电流互感器及电流表
◆ 计量用环形电流互感器
◆ 开关位置钥匙锁
◆ 电动操作机构
◆ 预留母线扩展
◆ 外部母线
电缆分支箱负荷开关单元1K24
该负荷开关为电缆分支箱专门开发设计,可分为单套管左侧进线、单 套管右侧出线,单套管左侧进线,双套管右侧出线,采用一个SF6气箱的结构,出线回路最多可分六路,因此结构相对简化,便于安装,更为安全;使单开关电缆分支箱体积更小,安装更方便,可靠性更高的SF6负荷开关。
标准配置
◆ 630A母线
◆ 三工位负荷/接地开关
◆ 弹簧操作机构
◆ 负荷开关和接地开关位置指示
◆ 位于前部水平布置的出线套管
◆ 进线/母线电压指示器(单体或母线扩展型)
◆ 出线电压指示器
◆ 所有的开关功能都可在面板上加装挂锁方式实现控制
◆ 接地开关与电缆室门的联锁
◆ SF6气压表
◆ 接地铜排
◆ 防爆泄压阀
可选配置
◆ 短路、接地故障指示器
负荷开关熔断器组合电器单元F
组合电器单元用作1250KVA及以下容量的变压器保护,本单元配有可以装入熔断器的绝缘套筒。绝缘套筒置入SF6气箱之内,进一步提高其绝缘性能。接地开关闭合时,熔断器下侧同时接地,并实现熔断器上侧与电源的安全隔离,确保更换熔断器时人员的安全。为了保证熔断器在一相熔断后,不致造成电气设备缺相运行,本单元中配置了跳闸联动机构,当脱扣观察窗显示红色时,表示脱扣装置动作或熔断器熔断并跳闸。本单元可以和其它单元组合,实现环网供电。
标准配置
◆ 630A母线
◆ 三工位负荷/接地开关
◆ 弹簧操作机构
◆ 负荷开关和接地开关位置指示
◆ 位于前部水平布置的出线套管
◆ 进线/母线电压指示器(单体或母线扩展型)
◆ 出线电压指示器
◆ 所有的开关功能都可在面板上加装挂锁方式实现控制
◆ 接地开关与电缆室门的联锁
◆ SF6气压表
◆ 接地铜排
◆ 防爆泄压阀
可选配置
◆ 短路、接地故障指示器
◆ 测量用环形电流互感器及电流表
◆ 计量用环形电流互感器
◆ 开关位置钥匙锁
◆ 电动操作机构
◆ 预留母线扩展
◆ 外部母线
熔断器更换步骤:
用开关操作手柄逆时针旋转半圈,往外拉出更换熔断器,安装时对好挂钩位置顺时针旋转。
真空断路器单元V
采用弹簧式真空断路器,机械寿命可达10000次;(保护动作快,分闸时间不大于30ms),易于实现级差配合。采用三工位负荷隔离开关。真空断路器与负荷开关一同密封在3mm厚不锈钢板制成的SF6气箱内,整个系统实现全绝缘、全密封、免维护。
标准配置
◆ 630A母线
◆ 630A断路器模块ISM
◆ 控制器CM(DC24V操作电源)
◆ 三工位负荷隔离开关
◆ 自供电型电子式继电保护器(SEG-WIM1,WIC1)
◆ 套管式保护CT
◆ SF6气压表
◆ 符合DIN47636标准的套管
◆ 接地与电缆仓门的闭锁
◆ 真空断路器开关位置辅助接点:2NO+2NC
◆ 标配操作电源(包括电源用PT、电源模块、后备电池)
可选配置
◆ 连接母线
◆ 测量用电流互感器及电流表
◆ 辅助接点:负荷隔离开关位置 2NO+2NC、接地开关位置 2NO+2NC

附件概述:
1、 辅助接点
所有的负荷开关和接地开关都可配置指示开关位置的辅助接点,安装在操作机构内部。
2、 遥控和遥测单元
SDGreen-12系列开关柜,可以配置集成遥控监测单元,这种预装式产品可在工厂内完成组装。
3、 带电显示器
开关单元的进出线套管上配有容性电压指示装置。每个带电显示器本身还带有三相电压核相引出点,配置核相器可用于核相。
4、 短路/接地故障指示器
为便于故障查找,开关单元可以配置短路/接地故障指示器。
5、 电缆连接
SDGreen-12系列开关柜配置DIN 47636型标准套管。电缆室仓门与接地开关互锁。根据出线回路的多少可选择不同的开关接线单元。
6、 压力指示仪表
SDGreen-12系列开关柜都配置有SF6气体压力表
7、 钥匙锁
SDGreen-12系列开关柜可配置用于负荷开关、接地开关的钥匙锁。
8、 挂锁
SDGreen-12系列开关柜可配置防止非工作人员操作的挂锁。
9、 二次线小室/仪表箱
SDGreen-12系列开关柜可配置二次线小室/仪表箱,用于安装二次配件、仪表。
附件概述
10、避雷器
SDGreen-12系列开关柜的可配置T形硅橡胶插头式金属氧化锌避雷器。
◆ 持续运行电压13.6kV
◆ U1mA.DC参考电压≥25kV
◆ 0.75U1mA.DC泄漏电流<50μA
11、可分离连接器
T形前插头和后插头,PT肘型插头,完成电缆连接的同时可安装插入式金属氧化锌避雷器的π形插头。
12、电流互感器
SDGreen-12系列开关柜可根据需要配置穿心式电流互感器,用于计量 / 测量。
◆ 二次输出5A
◆ 精度0.2级或0.5级
断路器单元采用内置式CT:
◆ 环氧树脂浇注
◆ 二次引出线防潮设计
◆ 套管式安装
13、电压互感器
SDGreen-12系列开关柜可根据需要配置10kV全密闭电压互感器,以满足配网自动化的要求。可用于提供计量 / 测量用电压信号、开关电动操作机构电源。
◆ 可根据需要选择单 / 三相
◆ 变比:10/0.1/0.22kV
◆ 精度(AC100V):0.2级或0.5级
附件概述
14、专用并柜母线
全绝缘、全密封结构
15、熔断器
用户可根据使用需要自行配置亦可由我公司根据适用标准推荐配置并提供。我公司建议使用HVHRC熔断器,其为带温度保险装置的后备熔断器,可防止熔断器筒内异常过热引起的设备损坏,订货时请标明变压器的额定容量、工作电压及熔断器的额定电流。
16、保护继电器
采用外供电、自供电多功能微机综合保护装置。紧凑设计,环境适应性强, 符合VDE 要求- 0435-303 ,IEC255,VDE0843。
◆ 不需外加电源
◆ 自带安全保护运行模式
◆ 整定范围宽,操作步骤简单
◆ 采用微处理器处理信号,达到高精度参数测量
◆ 采用内部自检测(看门狗)设计,操作可靠
◆ 保护功能可选
◆ 定时限过流保护(DMT)
◆ 反时限过流保护(IDMT)
◆ 反时限曲线可选:
一般反时限
非常反时限
极反时限
技术参数
其它数据
特殊条件
遵循IEC60694标准,对于有别于正常操作的条件下的特殊运行条件,制造商和用户必须取得一致。如果涉及特殊恶劣的运行环境,则必须预先向制造商和供应商咨询。当电气设备安装在海拔高度为1000米以上时,需特殊注明,以便制作时对压力进行调整。
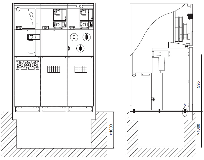
开关外形尺寸
开关地基尺寸
一次线图

注:C: 负荷开关单元(单组套管出线) C+: 双套管出线的负荷开关单元
D: 电缆进线单元,全密闭,不带开关 -: 母线顶套管 +: 母线侧套管
一次线图

注:F: 负荷开关-熔断器组合电器单元
V: 断路器单元 C: 标准单套管负荷开关单元